Galeria zdjęć




Opis projektu
MDDOM 99 to energooszczędny dom budowany w technologii szkieletowej MDDOM®.
Projekt domu parterowego który spełnia większość potrzeb całej rodziny.
Budynek parterowy z dachem w konstrukcji kopertowej. Ciekawy wygląd, wygodny rozkład pomieszczeń zapewni wygodę życia.
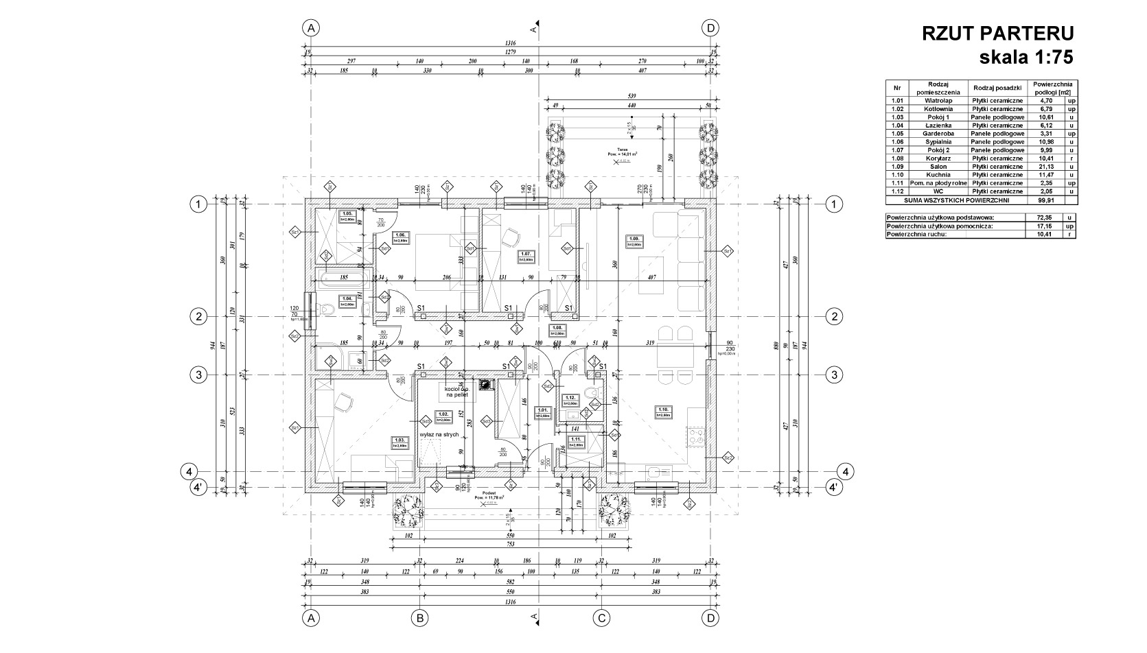
Dom został podzielony na dwie strefy. Duża strefa dzienna pozwala całej rodzinie na wspólne spędzanie czasu. Widocznie rozdzielenie stref daje również spokój domownikom w ich prywatnych pokojach.
Ciekawym rozwiązaniem jest główna sypialnia z własną garderobą oraz z wyjściem na taras.
Projekt zakłada 3 osobne sypialnie, pomieszczenie techniczne oraz dwie łazienki.
Powierzchnia użytkowa 99,91m2
Salon z jadalnią
Otwarta kuchnia
3 sypialnie
2 łazienki
Główna sypialnia z własną garderobą i łazienką
Pomieszczenie techniczne
strych
