Galeria zdjęć






Opis projektu
MDDOM 57 to energooszczędny dom budowany w technologii szkieletowej MDDOM®.
Jest to dom z poddaszem użytkowym w konstrukcji nowoczesnej stodoły, który jest ciekawą alternatywą dla mieszkania w bloku.
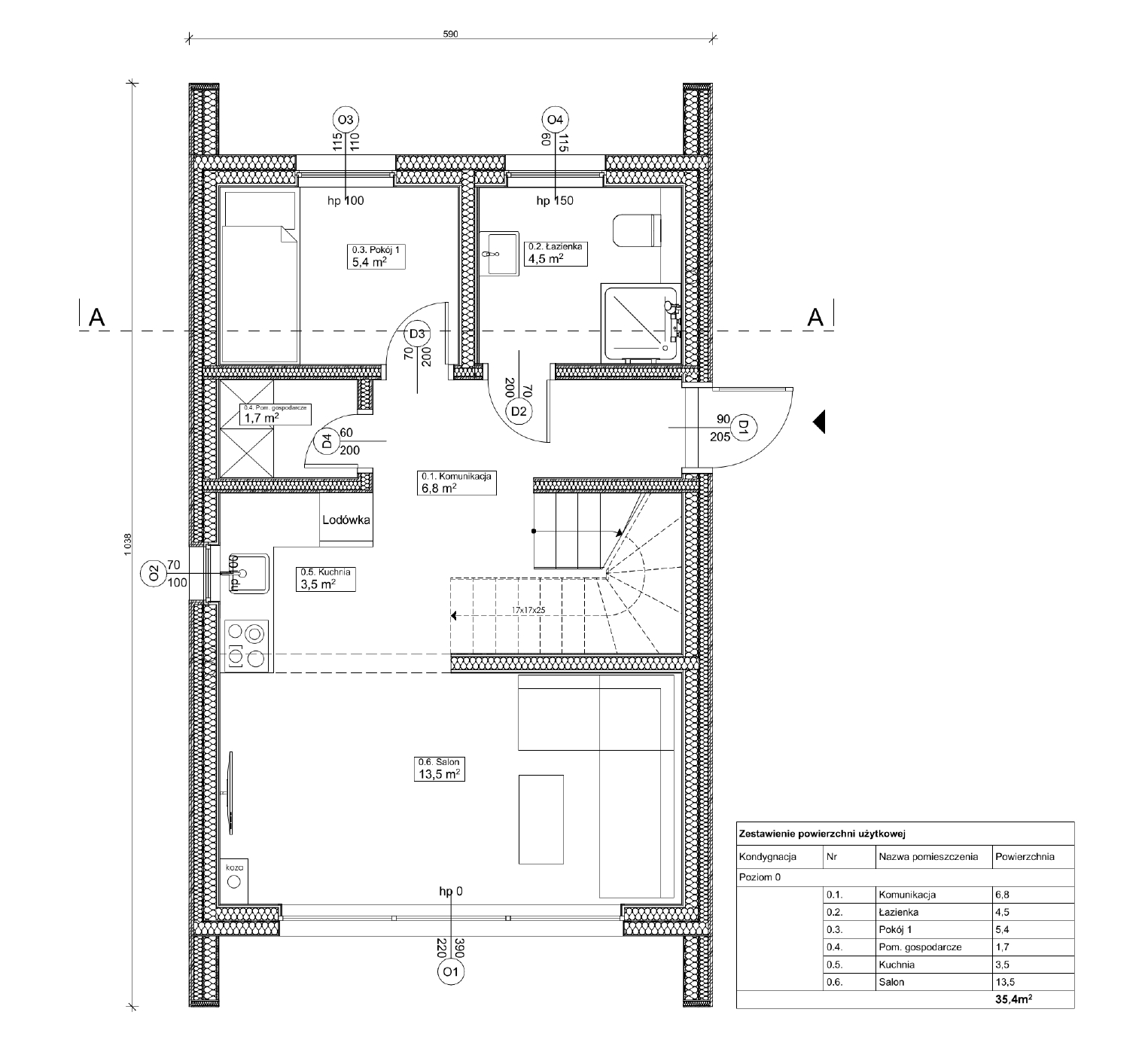
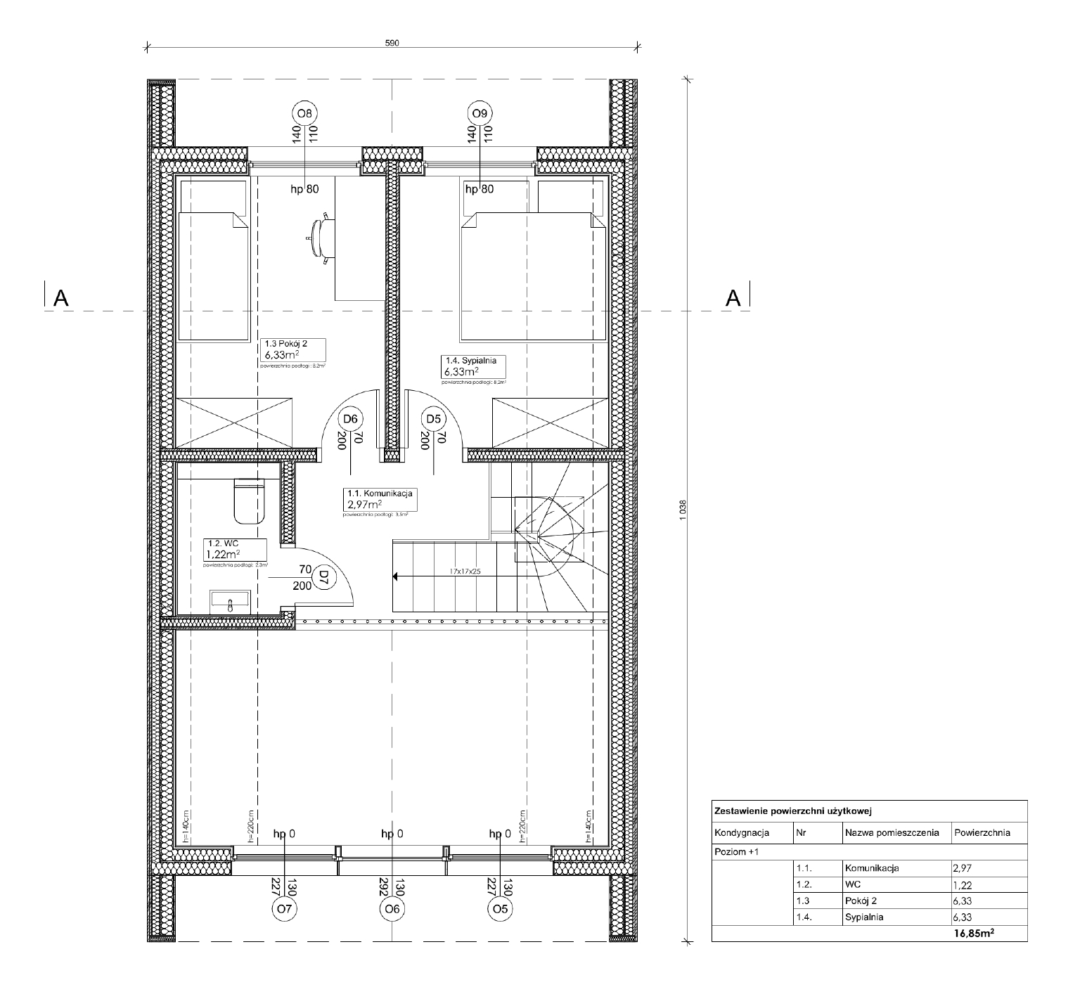
Projekt MDDOM 57 jest domem całorocznym. Wewnątrz na parterze zaprojektowany został przestronny salon z aneksem kuchennym a także pokój, łazienka oraz pomieszczenie gospodarcze. Dodatkowo w projekcie przewidziana jest “pustka” nad całym salonem. Na antresoli natomiast zlokalizowane są dwa pokoje oraz toaleta.
Projekt MDDOM 57 to nieruchomość, którą charakteryzują duże przeszklenia. Dzięki nim do domu wpada dużo jasnego, naturalnego światła rozświetlając jego wnętrze. Dzięki nowoczesnym rozwiązaniom i nowoczesnemu wzornictwu całość zapewnia wygoda użytkowania.
Wymiary zewnętrzne: 5,9 x 10,38 m
Powierzchnia użytkowa: 52,25 m2
Powierzchnia podłóg: 57,6 m2
Powierzchnia zabudowy: 53 m2
Wysokość budynku: 752 cm
Wysokość parteru: 256 cm
Wysokość na antresoli: 255 cm
