Galeria zdjęć




















Opis projektu
Dom szkieletowy z garażem
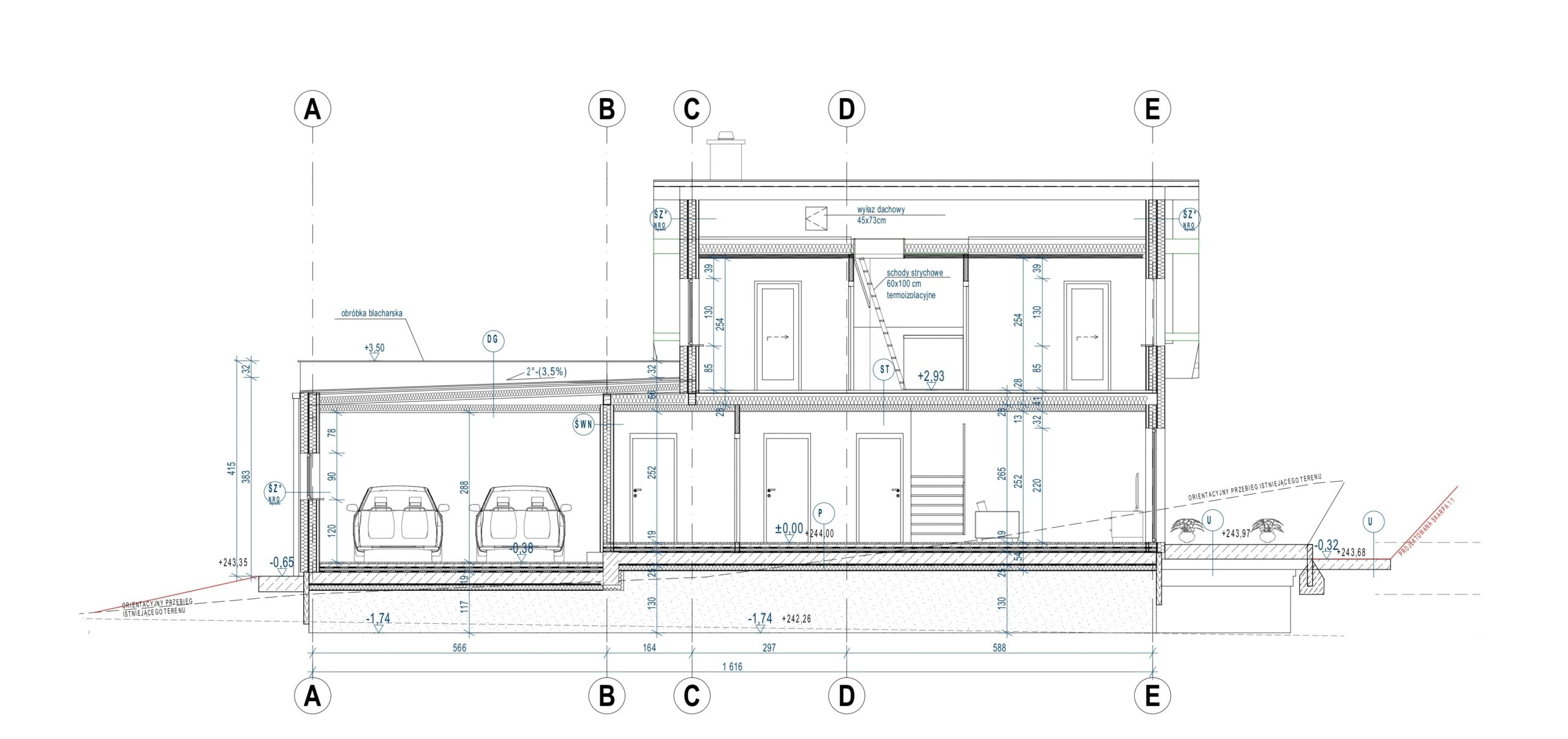
Dom szkieletowy z garażem to inwestycja, która obejmowała Budowę całorocznego domu z garażem o łącznej powierzchni 128,05 m2 w miejscowości Skrzyszów w województwie śląskim.
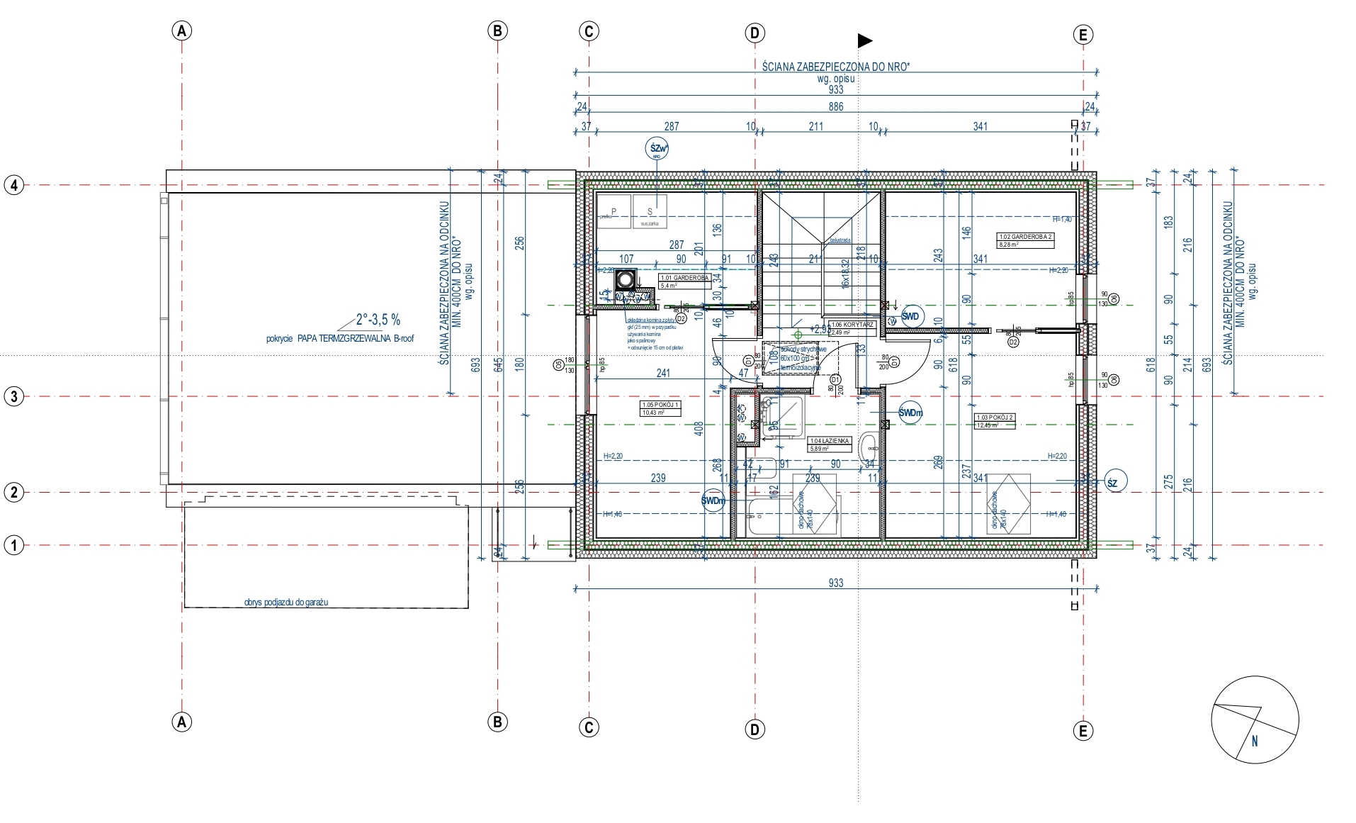
Projekt domu szkieletowego z garażem zakładał 3 pokoje, salon z otwartą kuchnią, 2 łazienki, pomieszczenie gospodarcze, schowek gospodarczy oraz garaż dwustanowiskowy. Inwestor we współpracy z naszym architektem wprowadził zmiany do projektu: garaż dwustanowiskowy, odbicie lustrzane, zamiast trzeciego pokoju na poddaszu wykonana została garderoba.
Budowa domu szkieletowego z garażem – Kontakt
Jeżeli jesteś zainteresowany budową domu szkieletowego z garażem zapraszamy do kontaktu .
Aby przedstawić wszystkie szczegóły technologii budowy domu oraz szczegóły współpracy z naszą firmą nasz przedstawiciel zaprosi Państwa na spotkanie w biurze MD DOM w Wodzisławiu Śląskim oraz na wybranej aktualnej budowie naszego domu szkieletowego, tak aby mogli Państwo zapoznać się na żywo z naszą pracą i jakością domów.
